
Sie brauchen in Krisenzeiten mehr Kommunikation, mehr Social-Media-Kompetenz, mehr psychologische Hilfe: Der Lehrstuhl für Kinder- und…
Neubau der KJPP in Weiden – moderne Psychiatrie für die junge Generation
Im ersten Halbjahr 2026 eröffnet die neue Klinik für Kinder- und Jugendpsychiatrie, Psychosomatik & Psychotherapie (KJPP) in Weiden - mit modernster Ausstattung, multiprofessionellen Teams und einem klaren Versorgungsauftrag für die Nordoberpfalz.
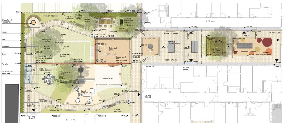
Der Neubau bietet 32 stationäre Betten, 18 tagesklinische Plätze sowie eine Institutsambulanz – gegliedert in Bereiche für Klein- und Vorschulkinder, Schulkinder sowie Jugendliche und junge Erwachsene.
Was uns besonders macht? Die Klinik ist architektonisch und therapeutisch auf die Bedürfnisse junger Menschen ausgerichtet – mit klaren Strukturen, Rückzugsräumen und spezialisierten Bereichen für Klein- und Vorschulkinder, Schulkinder sowie Jugendliche und junge Erwachsene.
Neue Räume – neue Chancen
Ob Medizin, Pflege, Therapie, Sozialpädagogik oder Psychologie:
Wer in einem engagierten Team mitgestalten und Kindern helfen will, ihre Zukunft selbst in die Hand zu nehmen, findet hier Raum für Wirkung und Weiterentwicklung.
Sie brauchen in Krisenzeiten mehr Kommunikation, mehr Social-Media-Kompetenz, mehr psychologische Hilfe: Der Lehrstuhl für Kinder- und…
„Mit viel Kreativität und nach vorne gerichtet schauen wir darauf, dass es den Kindern und Jugendlichen besser geht.“ –
Mit diesen Worten beschreibt…
Lernen Sie unsere Kolleginnen in der KJPP Weiden kennen. Alle Videos über die Arbeit in der Kinder- und Jugendpsychiatrie
Wir stellen ab 2026 folgende Berufsgruppen in Voll- und Teilzeit in Weiden ein.
Die Eröffnung ist für April 2026 vorgesehen. Der Bau liegt aktuell im Zeitplan.
Die neue KJPP entsteht in der Gabelsbergerstr. 7 in Weiden in der Oberpfalz in unmittelbarer Nähe zum Klinikum Nordoberpfalz in Weiden.
Ziel ist eine gute Versorgung der Nordoberpfalz im Bereich Kinder- und Jugendpsychiatrie in einer modernen, kindgerechten und therapeutisch optimierten Umgebung mit mehr Platz, Tageslicht, Freizeitflächen und attraktiveren Arbeitsbedingungen für das gesamte Team.
Gesucht werden u. a.:
Sie können sich aktuell für unseren Bewerberpool unter www.medbo.de/weidenjobs eintragen lassen. Wir halten Sie dann über alles Weitere am Laufenden.
Ja! Wir legen großen Wert auf strukturierte Einarbeitung, Mentoring und interdisziplinären Austausch.
Wir arbeiten multiprofessionell: enge Teamarbeit zwischen Pflege, Ärzteschaft, Psychotherapie, Sozialdienst, etc. ist unser Standard.
Ja. Wir bieten unter anderem:
Sehr! Wir achten auf Dienstpläne mit Rücksicht auf Familiensituationen, bieten Teilzeitmodelle und unterstützen mit Kinderbetreuung in den Ferien in Kooperationen mit LearningCampus. Als zertifizierter Arbeitgeber mit dem berufundfamilie-Siegel setzen wir uns aktiv für die Vereinbarkeit von Beruf und Familie ein.
Derzeit arbeiten knapp 40 Personen am Standort Weiden. Für den Neubau ist eine Einstellung von rund 80 weiteren Personen geplant. Der Aufbau erfolgt sukzessiver.
Der Neubau wird modernste Technik, digitale Dokumentation und funktionale Raumkonzepte bieten – mit dem Fokus auf Sicherheit und eine heilende Umgebung.
Kinder- und jugendgerechte Gestaltung ist ein Kernaspekt. Es fließen Erfahrungen aus anderen Häusern und aktuelle Erkenntnisse aus der Milieutherapie ein.
Ja, wir arbeiten eng mit Schulen, Jugendämtern, niedergelassenen Kolleg:innen und Einrichtungen der Jugendhilfe zusammen.
Regelmäßige Updates gibt’s auf www.medbo.de/weidenjobs.
Über unseren Bewerberpool werden Sie zu allem wichtigen angeschrieben und eingeladen. Auch Infoveranstaltungen per Zoom sind schon terminiert. Der nächste Karriere-Info-Zoom findet am 14.07.2025 um 14:00 Uhr statt.
An unser medbo Team unter bewerbung@medbo.de oder personalmarketing@medbo.de.